Proyectos
Estudio
Contacto
Proyectos
Estudio
Contacto
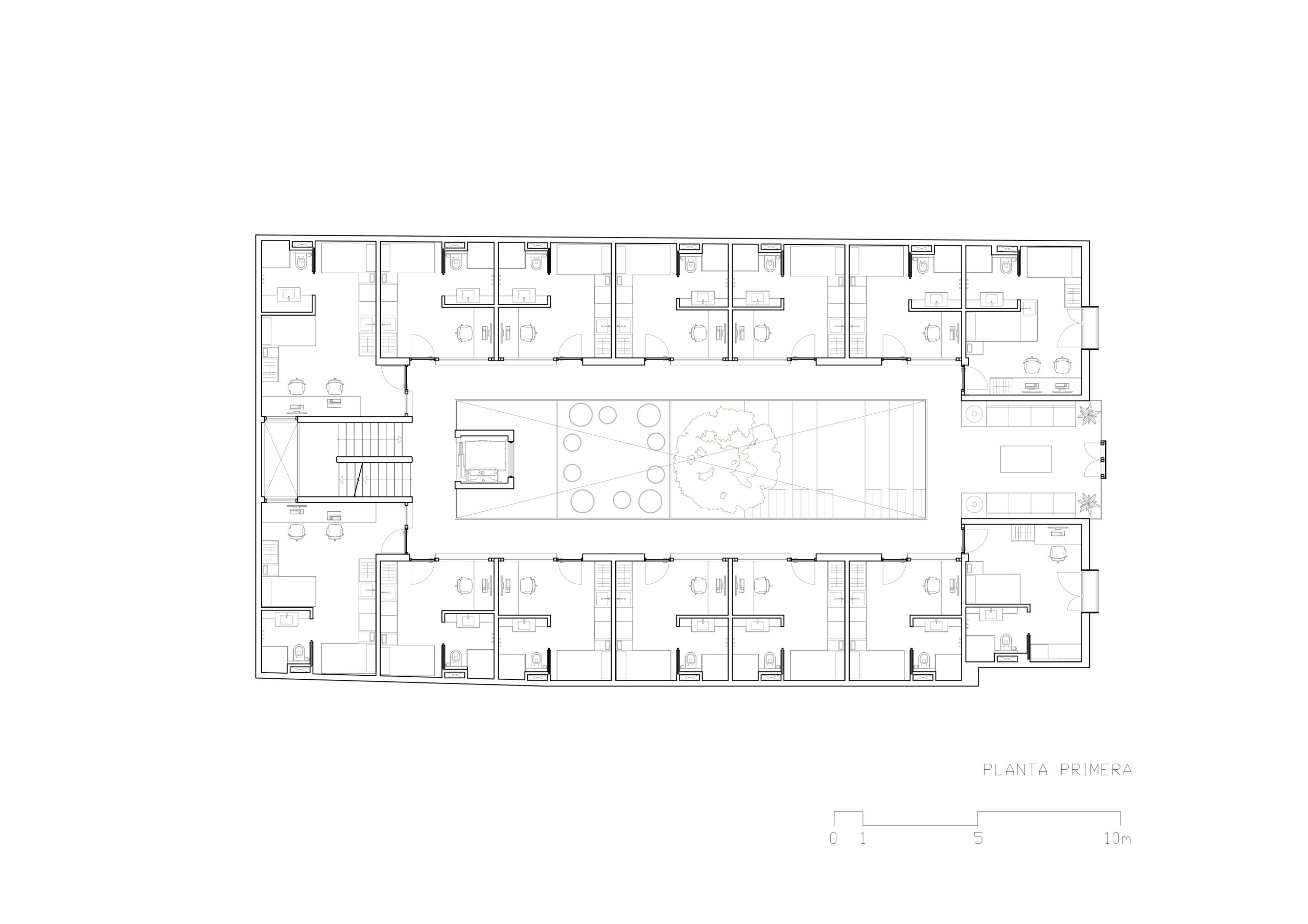
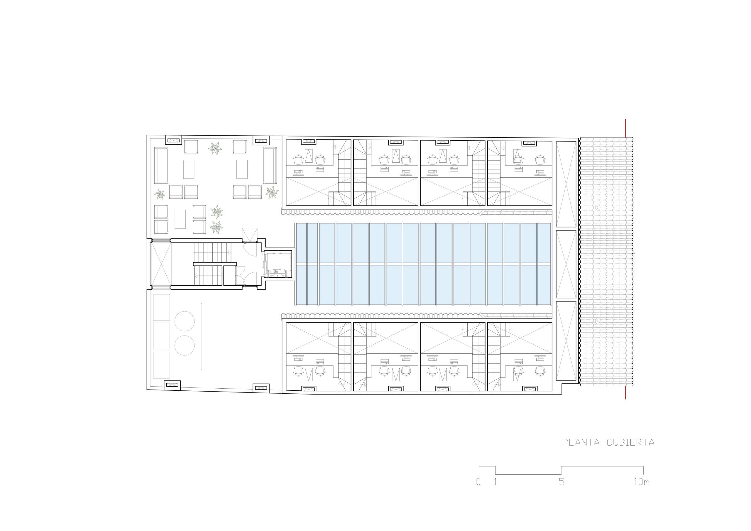
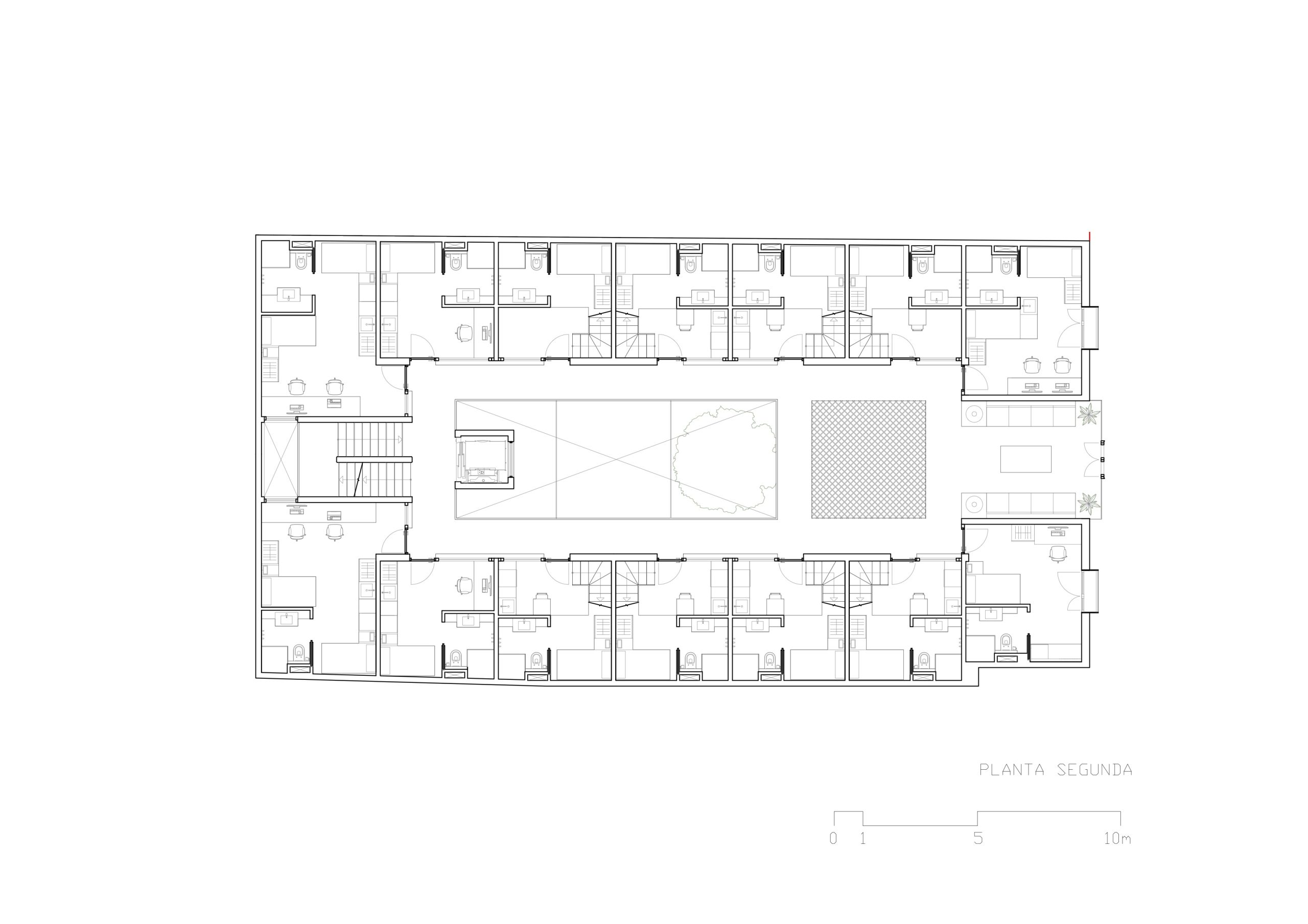
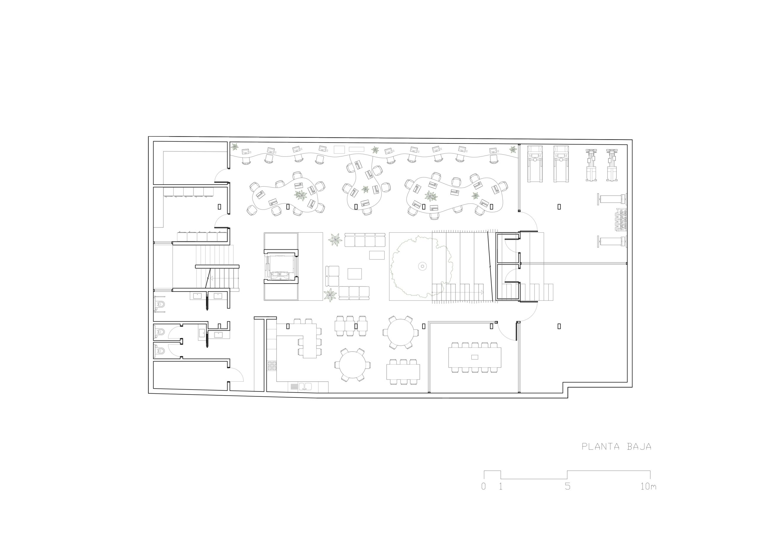
Residencial Calle Hurtado
Proyecto sin construir
Imágenes
Planos