Proyectos
Estudio
Contacto
Proyectos
Estudio
Contacto
Edificio Santangelo
Imágenes
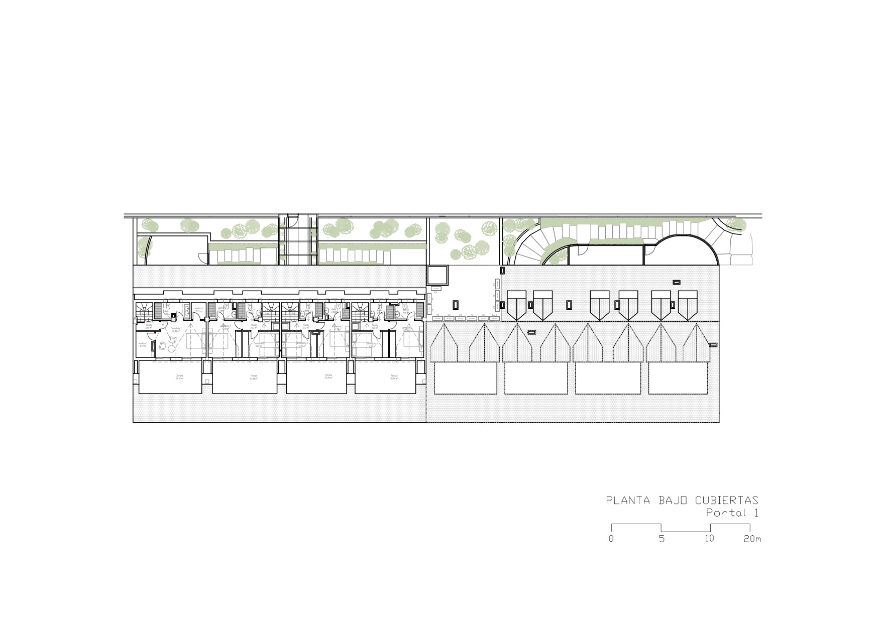
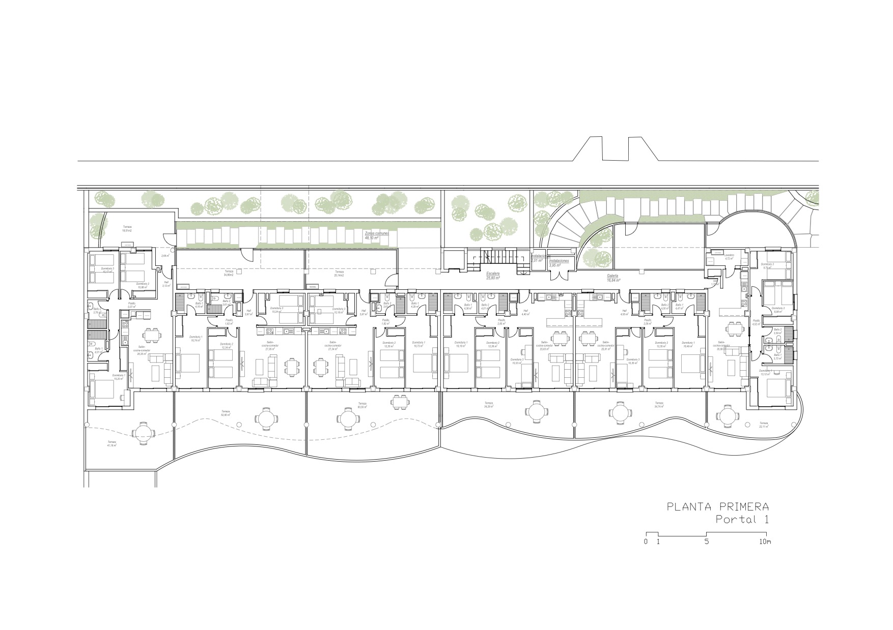
Planos