Proyectos
Estudio
Contacto
Proyectos
Estudio
Contacto
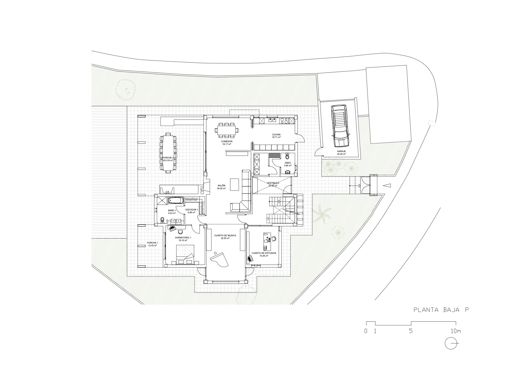
Chalet Los Monteros
Imágenes
Planos