Proyectos
Estudio
Contacto
Proyectos
Estudio
Contacto
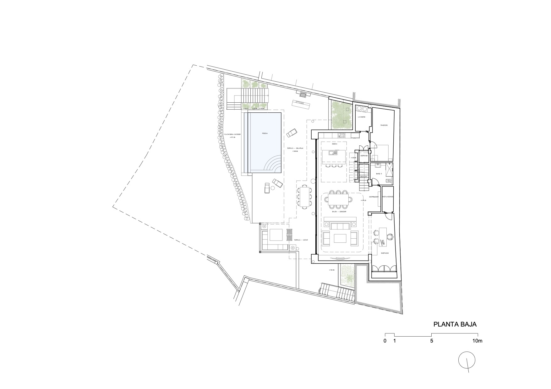
Calle Sierra Bermeja
Año 2025
Imágenes
Planos