Proyectos
Estudio
Contacto
Proyectos
Estudio
Contacto
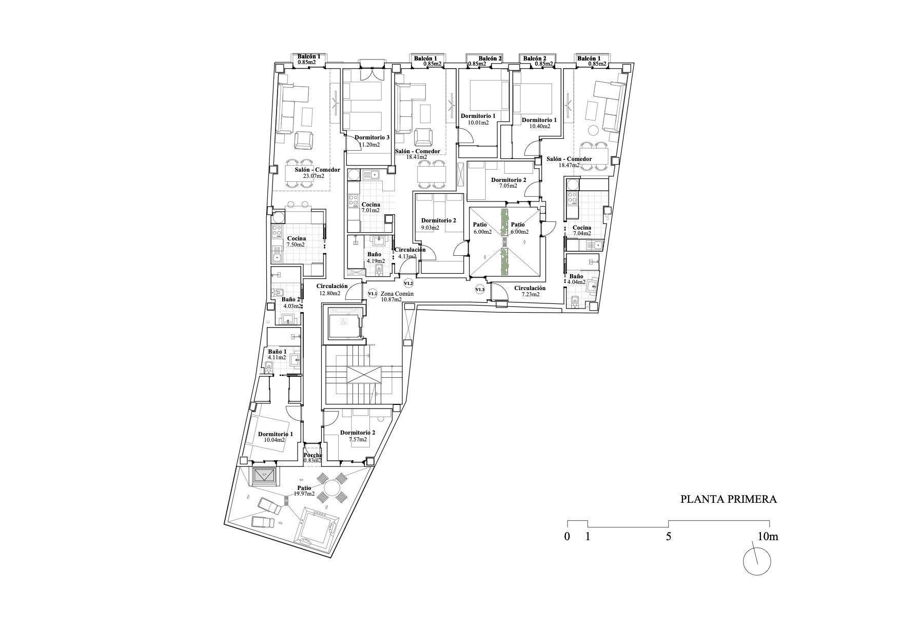
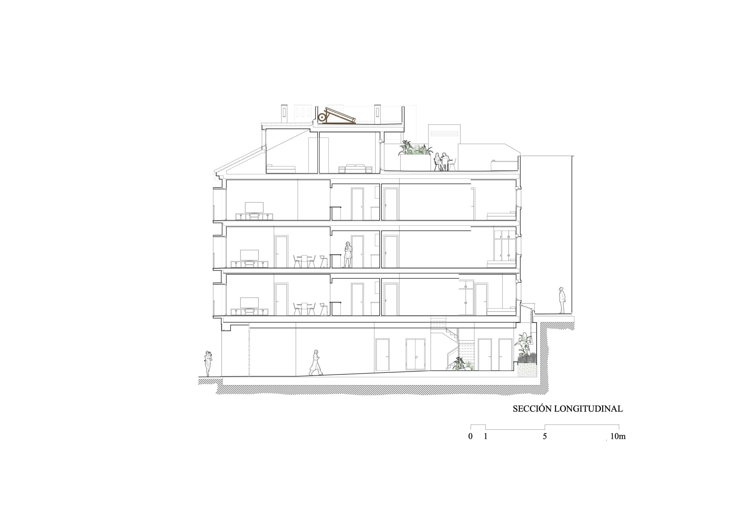
Calle Campaneros
9 viviendas y aparcamientos
Imágenes
Planos